View All Services
At Blackcomb Landscaping LTD, hardscaping is more than just installing stone or concrete—it’s about creating functional, long-lasting outdoor spaces that reflect your lifestyle. Whether it’s a patio for entertaining, a stone pathway, a retaining wall, or a custom driveway, our designs are tailored to your unique needs.
We combine quality craftsmanship with the best materials to ensure your outdoor living space is both durable and beautiful. Our team makes the process smooth and straightforward, so you can enjoy your new hardscape without stress.
Building Your Dream Hardscape
Here’s how we bring your vision to life step by step:
Step 1: Site Meeting
Your vision comes first. We’ll meet with you to discuss your goals, space requirements, budget, and timeline. Our experts will also suggest design ideas to help you visualize the possibilities for your outdoor space.
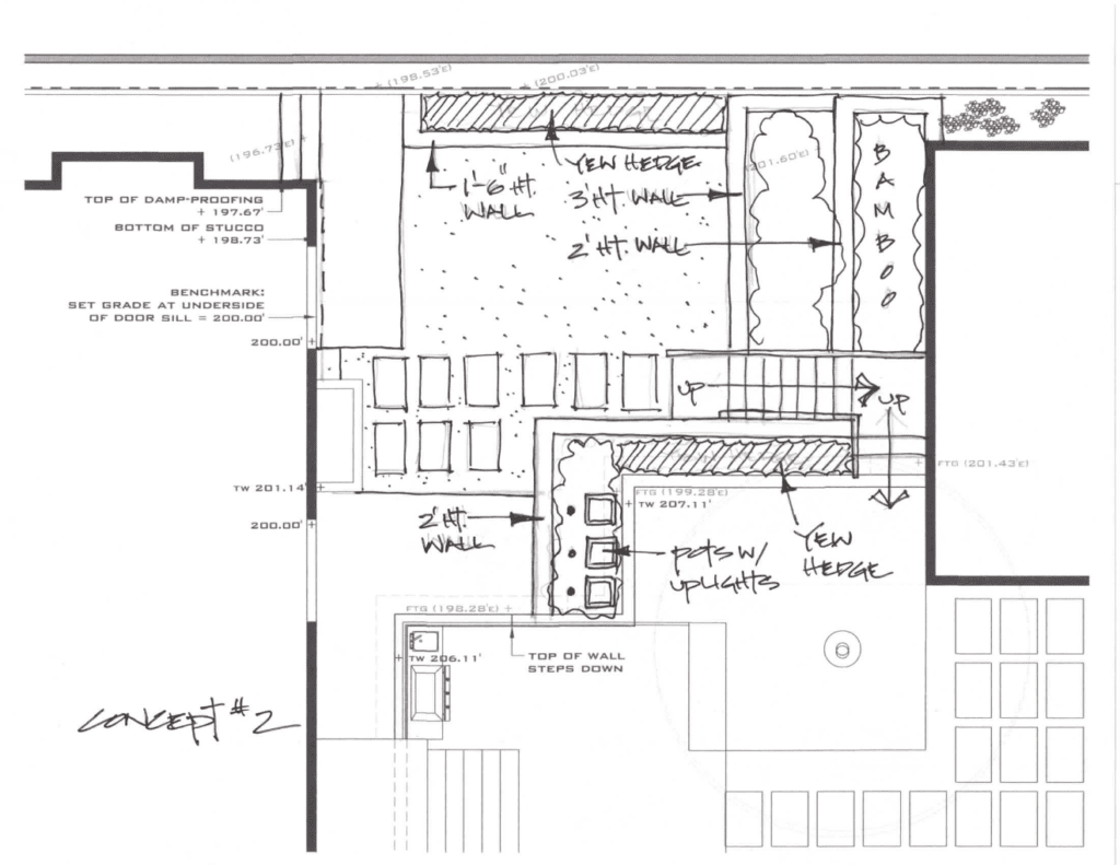
Step 2: Concepts
This is where ideas take shape. We’ll create conceptual designs customized for your property—whether you prefer modern pavers, classic stonework, or creative retaining wall solutions. Together, we’ll refine these ideas to form the foundation of your final design.
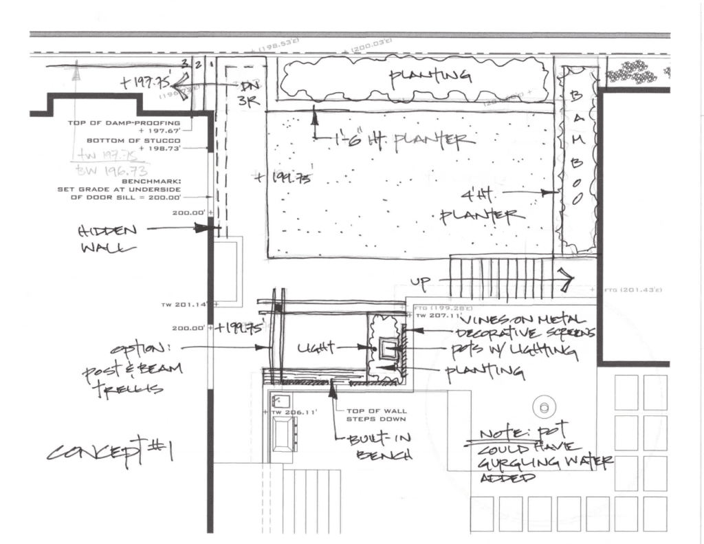
Concept 1
Concept 2
Step 3: Final Design
Your final design includes detailed 2D plans, and if needed, 3D renderings for a clear view of your new outdoor space. Plans typically include:
- Key measurements
- Layouts for patios, walkways, and retaining walls
- Material selection (stone, brick, concrete, pavers)
- Outdoor lighting placement
- Drainage and slope considerations
With our expertise, your space will combine durability, function, and style.
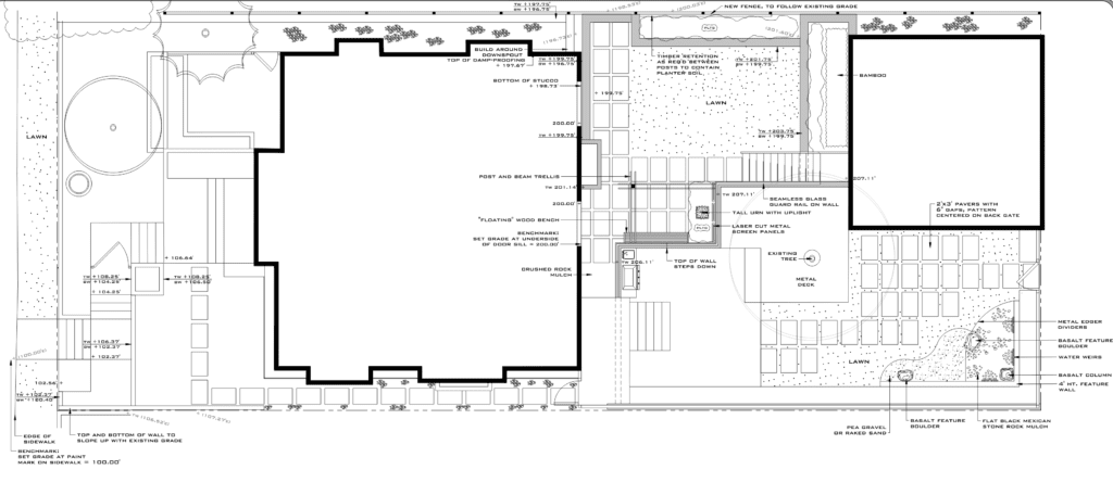
Detailed Plan
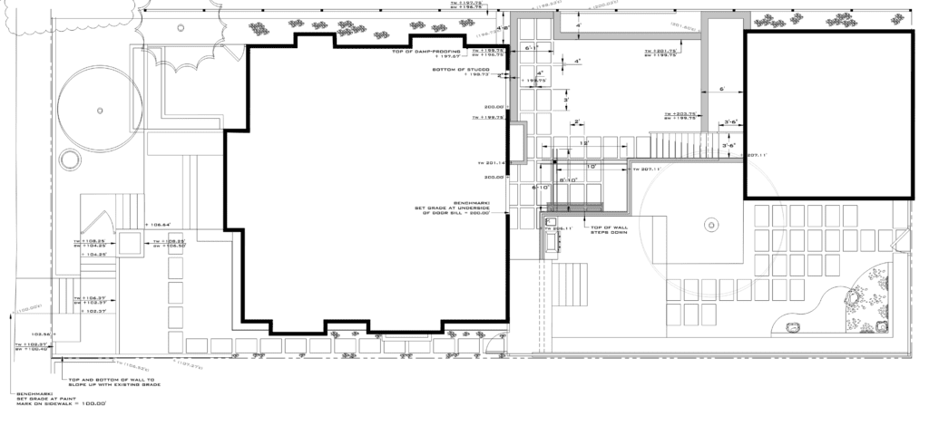
Dimensional Plan
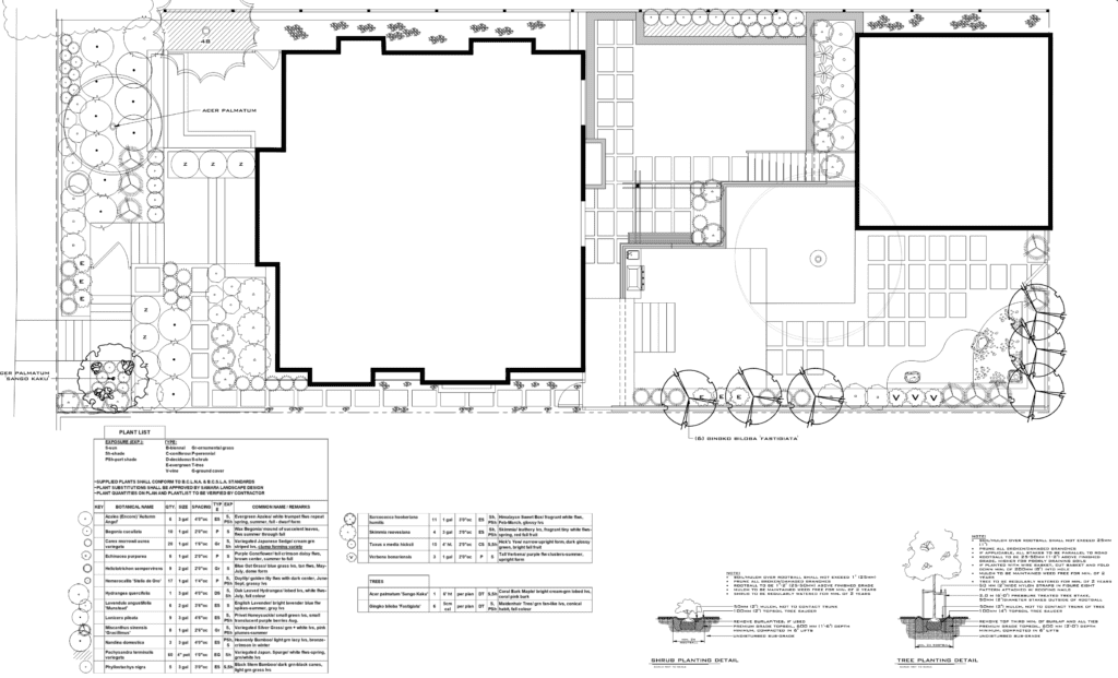
Planting Plan
3D Rendering
Hardscaping Features We Specialize In
- Patios & Outdoor Living Areas – Perfect for dining, relaxing, and entertaining.
- Walkways & Pathways – Elegant stone or paver walkways that connect your spaces.
- Driveways – Durable, custom-designed driveways that add curb appeal.
- Retaining Walls – Functional and stylish walls to manage slopes and add structure.
- Fire Pits & Outdoor Kitchens – Bringing warmth and life to your backyard.
Why Choose Blackcomb Landscaping LTD?
Your property deserves no less than the best. Our insured and experienced hardscape installers provide:
- High-quality materials built to last
- Professional craftsmanship and attention to detail
- A customer-focused approach with clear communication
- Outdoor spaces that add both value and enjoyment to your home
- Outdoor spaces that add both value and enjoyment to your home
Add Lasting Value to Your Home
Hardscaping not only improves the look of your property but also boosts functionality and resale value. With the right designs, materials, and skilled installation, you’ll enjoy an outdoor space that stands the test of time.
Begin creating your ideal hardscape today with our certified experts.
